低能耗半导体功率器件废水处理
一、废水项目概述
某功率半导体有限公司主要产生如下:含氟清洗废水、研磨清洗废水、有机废水(因产水量较少,浓度高,委托第三方处置单位处置)、酸碱废水,废水性质主要为清洗废水,浓度较低,容易处理。废水经过系统处理后达到国家污水综合排放标准级标准和纳管排放。
二、废水设计技术规范及相关标准
本污水处理项目的设计,施工与安装严格执行国家的专业技术规范与标准,其主要规范与标准如下:
| ●《污水综合排放标准》 | GB8978-1996 |
| ●《钢结构设计规范》 | GB50017-2017 |
| ●《固定式钢梯和平台要求》 | GB 4053—2009 |
| ●《机械设备安装工程施工及验收规范》 | GB50231-2009 |
| ●《现场设备、工业管道焊接施工及验收规范》 | GB50236-2011 |
| ●《电力装置的继电保护和自动装置设计规范》 | GBT50062-2008 |
| ●《电气装置施工及验收规范》 | GB-50254-96 |
| ●《分散型控制系统工程设计规范》 | HGT-20573-2012 |
| ●《工业与民用供配电系统设计规范》 | GB-50052-2009 |
| ●《低压配电装置及线路设计规范》 | GB50054-2011 |
| ● 客户提供的环评资料 | |
三、废水水质和水量情况
该厂区主要废水生产废水来源于以下:
| 3.1、含氟清洗废水及处理单元预估出水情况 |
处理工艺 | 项目 | 水量(t/a) | pH | COD(mg/l) | SS(mg/l) | F-(mg/l) | 氯化物(mg/l) |
一级反应沉淀池 | 进水 | 11520 | 3-4 | 50 | 25 | 300 | 30 |
出水 | 11520 | 4-5 | 40 | 17.5 | 60 | 30 |
去除效率% | - | / | 20 | 30 | 80 | / |
二级反应沉淀池 | 进水 | 11520 | 4-5 | 40 | 17.5 | 60 | 30 |
出水 | 11520 | 5-6 | 32 | 7 | 12 | 30 |
去除效率% | - | / | 20 | 60 | 80 | / |
pH调节池 | 进水 | 11520 | 5-6 | 32 | 7 | 12 | 30 |
出水 | 11520 | 6-9 | 32 | 7 | 12 | 30 |
| 3.2、研磨清洗废水及处理单元预估出水情况 |
处理工艺 | 项目 | 水量(t/a) | pH | COD(mg/l) | SS(mg/l) |
反应沉淀 | 进水 | 3840 | 6-9 | 100 | 800 |
出水 | 3840 | 7-10 | 100 | 200 |
去除效率% | - | / | 0 | 75 |
pH调节池 | 进水 | 3840 | 7-10 | 100 | 200 |
出水 | 3840 | 6-9 | 100 | 200 |
3.3、含有机物清洗废水
有机清洗废水排放量较少,只为144m3/a,经现场收集后委托有资质单位处理处置。
|
处理工艺 | 项目 | 水量(t/d) | pH | COD | SS | 氨氮 | 总氮 | 总磷 | 硫酸盐 | 氯化物 |
一级反应沉淀 | 进水 | 77220 | 4-7 | 60 | 200 | 15 | 40 | 10 | 800 | 70 |
出水 | 77220 | 5-8 | 48 | 30 | 15 | 36 | 5 | 400 | 70 |
去除效率% | / | / | 20 | 85 | / | 10 | 50 | 50 | / |
二级中和 | 进水 | 77220 | 5-8 | 48 | 30 | 15 | 36 | 5 | 400 | 70 |
出水 | 77220 | 6-9 | 43 | 30 | 15 | 36 | 5 | 400 | 70 |
去除效率% | / | / | 10 | / | / | / | / | / | / |
pH调节池 | 进水 | 77220 | 6-9 | 43 | 30 | 15 | 36 | 5 | 400 | 70 |
出水 | 77220 | 6-9 | 43 | 30 | 15 | 36 | 5 | 400 | 70 |
经详细了解,该废水主要污染物为PH、SS值,废水性质简单,水质较稳定,未见明显复杂成分。经过化学调整PH和混凝沉淀后,可以保证达标。
四、处理出水指标
该生产清洗废水经处理后排放,参考标准为《污水综合排放标准》GB8978-1996标准,具体监测因子及水质指标见下表。
| 污水排放标准 单位:mg/L (pH值除外) |
污染物名称 | 水质标准限值 | 标准来源 |
pH | 6~9 | 《污水综合排放标准》 GB8978-1996级标准 |
BOD5 | 300 |
COD | 500 |
SS | 400 |
NH3-H | 25 |
动植物油 | 10 |
石油类 | 20 |
磷酸盐(以p计) | 5 |
总氮 | / |
氨氮 | 25 |
氟化物 | 20 |
五、清洗废水处理工艺
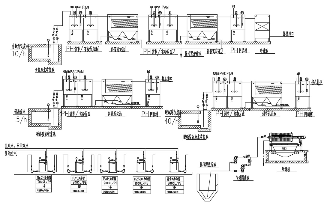
5.1工艺流程图
55
5.2 前处理清洗废水处理工艺方案的选择与确定
5.2.1含氟废水工艺说明
含氟清洗废水进入含氟清洗废水收集池后,经过PH调整、并添加氯化钙(CaCl2)产生无害的氟化钙(CaF2)沉淀,经投加混凝剂(PAC)、絮凝剂(PAM)进行混凝沉降,总除氟效率达到96%以上。含氟废水采用氯化钙作沉淀剂处理工艺,为成熟可靠工艺。

5.2.2研磨废水处理工艺说明
研磨清洗废水进入研磨废水收集池均质后,通过提升泵提升,调整pH值后加入PAC,PAM充分反应后,进入斜管沉淀池,总除SS效率达到90%,处理后废水经pH调节槽进入排放系统,产生的污泥进入污泥槽,经污泥脱水形成泥饼,外运。
5.2.3酸碱废水处理工艺说明
一般酸碱废水采用酸碱中和法处理,酸碱废水经管道收集后流入废水处理站的酸碱废水收集池;依次进入PH调整池,PH调整池中设计PH在线检测仪,根据PH情况,添加碱液后,再投加一定量的PAC和PAM絮凝剂后,进入沉淀池,防止SS值超标。

经沉淀后的废水进入pH调节槽,经检测合格后(pH值达到6~9范围内)排入公司生产废水排水管道。
